Ремонт кухни: учимся на своих ошибках

Ремонт кухни: учимся на своих ошибках
Ремонт кухни: учимся на своих ошибках

Делаем ремонт на кухне, так как жилец в нашей съемной квартире снес и выбросил всю встроенную мебель от пола до потолка, а потом съехал. Он, очевидно, сначала так не думал, его план состоял в том, чтобы восстановить его, но где-то по пути его нож сломался. В конце концов, он выбрал решение переехать, пока мы были в отпуске. Мы пришли домой, ни арендатора, ни квартплаты, ни кухни.

Ну, вот так мы и попали в ситуацию, когда начали делать кухню, потому что предыдущий вариант был очень хромым, но все же гораздо практичнее, чем квартира без кухни вообще.

Что наш арендатор оставил взамен за многомесячную невыплату арендной платы: 1 встроенную духовку, 1 встроенную варочную панель, 1 поддон для раковины со смесителем, немного мебели Ikea в коробках (подробнее об этом позже), и 1 шт., примерно 4 кв.м выложенная плиткой комната с примерно 1,5 кв.м плитки на одной стене. Обложки в любом случае хороши.

Задача звучит не очень сложно: 60-сантиметровую духовку, 50-сантиметровый холодильник и 40-сантиметровую тумбу под мойку нужно разместить на 151-сантиметровом пространстве. Просто, правда?

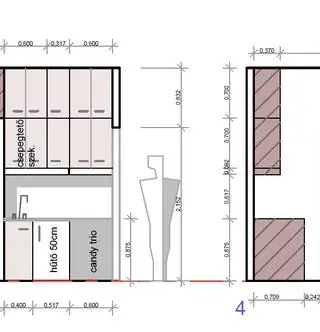
Г-образная ниша находится прямо над стойкой, а проем входной двери я нарисовал неправильно. Но эта часть вызвала много путаницы
Г-образная ниша находится прямо над стойкой, а проем входной двери я нарисовал неправильно. Но эта часть вызвала много путаницы

Ну у нас такого не было.

Поскольку поначалу совсем не казалось, что быстро собрать кухню будет большой задачей, я и не думал делать фото. Оглядываясь назад, это была ошибка, я никогда не думал, сколько всего можно напортачить во время такой работы. Что ж, мы напортачили, что могли, и делали это несколько раз. Я записываю это на случай, если кого-то еще можно спасти от этого.

Исходное состояние

Исходным условием была та, с которой мы сдавали квартиру, и которую наш арендатор должен был отремонтировать согласно договоренности. Она была совсем убогой, типичная для отдельно стоящих квартир кухонька, встроенная от пола до 3-х метрового потолка с обеих сторон, но в ней не было настоящей духовки, только мелочь на прилавке, и большая часть шкафы были неудобны в использовании. Та часть, которая позже станет проблематичной, должна представляться так:

исходное состояние3
исходное состояние3

План архитектора

Поскольку мы уже планировали ремонт кухни, мы поручили архитектору подготовить планы. Он пришел, посмотрел и составил хороший план. Я быстро подсчитал цены в Икеа и увидел, что 800 000 форинтов в нижней части диапазона недостаточно. Но, по крайней мере, у нас есть план, как только мы доберемся до него, мы сможем готовить по нему.

Стена слева - это то, о чем мы говорим
Стена слева - это то, о чем мы говорим

Насколько арендатор достиг

Жилец получил планы, когда мы согласились отремонтировать одну сторону кухни. Рядом с раковиной и холодильником под столешницей он установит еще одну духовку в гардеробной, а сверху на столешницу варочную панель. Он также заменяет верхние шкафы с этой стороны, не до потолка, а высотой всего в один шкаф.

В этом процессе работы дошли до того, что

  • он снес и выбросил все шкафы от пола до потолка с обеих сторон (включая те, которые он не хотел ремонтировать).
  • спроектировал водопровод в новом месте и необходимые электрические розетки
  • замостила пол и выложила стену плиткой

Представленный им план этажа выглядел так:

промежуточный план 1
промежуточный план 1

Нулевой отстой

Первое удивление пришло, когда однажды воскресным утром отец нашего жильца, взявший на себя управление работами, призвал нас немедленно принести встроенную духовку шириной 50 см вместо 60-сантиметровой, потому что план неверный, и места в дроп-ине не так много, как на плане.

Мы пошли туда, посмотрели, и оказалось, что помещение не было измерено до сноса и облицовки плиткой, поэтому они даже не поняли, что старая столешница поддерживается рядом кирпичей, построенных рядом со стеной с обеих сторон, которые также были удалены, должны были быть снесены. Так что действительно не было нужного места. Мы измерили, и казалось, что после демонтажа кирпичей получится 151 см, то есть духовка 60 см, холодильник 50 см и тумба под мойку 40 см поместятся.

Квартирщик съехал отсюда. Мы вызвали каменщика, он разбил кирпичи. Асфальтоукладчики, укладывавшие выступающие части пола.

Первый отстой

Первое настоящее потрясение было, когда мы задумались над тем, как бы нам отделать кухню, и поняли, что отделать только ту сторону, которую купил арендатор, не представляется возможным. Выкинув все встроенные шкафы с другой стороны, мы оказались в ситуации, и мы будем вынуждены сделать то же самое.

В связи с установкой духовки уже нельзя поставить ящик в ящик, если конечно я не хочу хранить столовые приборы под духовкой, на уровне земли. Или в верхнем шкафу, над моей головой. Так что надо делать и с другой стороны. А это большие деньги. До сих пор мы ожидали, что придется потратиться, но расходы вдруг подскочили еще больше.

Второй отстой

Второй удар был нанесен, когда мы подсчитали, что хотя у нас после сноса 151 см, внешние размеры (над столешницей) поддона под мойку больше, чем у 40-сантиметрового шкафа под мойку, поэтому он не будет подходит по краю, вы должны пойти на середину. Если холодильник находится под столешницей с одной стороны, а духовка и узкая варочная панель - с другой, останется место для 2-сантиметровых краев.

Для этого нужно было передвинуть водорозетку, приезжал сантехник и передвигал ее, потом электрик, который передвигал розетки.

Потом мы подумали о:

промежуточный план 2
промежуточный план 2

Третий отстой

Третий удар пришелся на то, что мы пошли в квартиру записывать артикулы ящиков ИКЕА и пытаться собрать дома то, что жилец уже купил и чего не хватает. Именно здесь мы обнаружили такие мелочи, как то, что нижний шкаф под раковину имеет стеклянную дверцу, один из верхних шкафов отсутствует, был ящик, для которого мы не могли найти шкаф, был шкаф, для которого мы не мог найти дверь. Да, но счета-фактуры у него, конечно, нет, а если и был, то больше нам его не давал.

В конце концов, мы так увлеклись, что собрали весь снежок и отнесли его обратно в Икею. В заводской, невскрытой упаковке, но без накладной. Мы объяснили ситуацию, почему у нас нет счета, и сказали, что сгоряча потратим те же деньги, даже больше, но хотим их вернуть.

Дежурный в Икеа был супер крут, вопреки официальному пути разобрался в ситуации, и всю пачку забрали как есть, сумма была зачислена на карту Икеа.

Четвертый отстой

К тому времени, когда мы обратились в Ikea, мы уже разработали множество версий с помощью программного обеспечения для 3D-дизайна кухни и чувствовали, что продумали все. Однако, прежде чем мы начали собирать мебель по списку, мы сели на кухне с профессиональной дамой, чтобы вместе проверить, все ли в порядке.

Он взглянул на план, а затем сказал нам, что если мы поместим печь там, где она есть на нашем плане (и там, где она была на первоначальном плане архитектора), мы не сможем открыть ее дверцу. потому что он застрянет в дверном косяке входной двери. Мы наглотались, заменили вместе с ним по плану холодильник и духовку/плиту, а потом купили необходимые элементы.

Потом мы упаковали все это в квартиру. Мой муж собрал и установил верхнюю линию шкафа примерно за два часа, включая установку светодиодного освещения, встроенного в нижнюю часть шкафа.

Потом мы вызвали электрика, чтобы он сделал еще одну подставку для шоколада для варочной панели с левой стороны.

Тогда мы подумали, что это будет хорошо:

Г-образная вставка начинается чуть выше высоты столешницы, поэтому такая компоновка также подходит
Г-образная вставка начинается чуть выше высоты столешницы, поэтому такая компоновка также подходит

Пятый отстой

Как только все это было на своих местах, мы в значительной степени собрали нижнюю мебель и были очень взволнованы, чтобы примерить ее, чтобы посмотреть, все ли подойдет. Это не подходило. Снаружи 151 см, а внутри всего 148. Напрасно мы просили штукатура, который переделывал стену после множества водопроводов и электросетей, замерить и внутри - он этого не сделал.

Мы пригласили архитектора еще раз обсудить планы на месте, чтобы больше не было сюрпризов. Он провел два часа в комнате площадью 4 квадратных метра и пришел к выводу, что отсюда все пойдет как по маслу. Комментарий у него был только один: по сложившейся ситуации столешница будет неудобно низкой, давайте купим и 8-сантиметровые ножки для шкафов.

Вызвали каменщика, вырезаем недостающие сантиметры. Выкопал, собрал обратно, получилось красиво. 151 см тоже внутри.

Шестая отстой

Именно тогда я показал планы своей девушке-дизайнеру интерьеров, которую я раньше не хотел нагружать своими проблемами, она и так работает так много, что не может видеть из головы. Он взглянул на план и сказал: ну да ладно, но зачем ставить раковину посередине? Таким образом, и без того крохотная рабочая поверхность еще больше уменьшается, полностью теряется участок в 20-25 см между мойкой и варочной панелью.

Одну проглотила, полдня переваривала, осмелюсь рассказать мужу. Тогда я сказал. Мы пошли туда, примерили мебель в существующем пространстве и пришли к выводу, что он был прав. Раковина должна быть на одном из краев. Так как духовка не может стоять рядом с дверью, идите туда.

Тогда я встала вплотную к стене и попыталась представить, как я буду мыть там посуду. Ни за что. Мой локоть постоянно ударялся о стену. Раковина для правши не может быть вровень с правой стороной стены. Мойка должна быть слева, духовка справа, но тогда нужно больше места, чтобы дверцу можно было еще и открыть. Нам нужен каменщик и нам нужно передать воду. Снова.

Седьмой отстой

Смотрела-смотрела на кухню и ее будущее расположение, и столкнулась с тем, что если поставить ножки на мебель, то плитка висит на один ряд ниже, чем должна. Другими словами, край столешницы уже будет на плитке, на тех плитках, которые сходятся в красивой V-образной форме. Другими словами, мы сможем вырезать треугольник через каждые десять сантиметров. Будет бардак… Ряд плиток тоже должен уйти.

Ну а потом раковина возвращается на прежнее место
Ну а потом раковина возвращается на прежнее место

Мы попросили каменщика снять ряд плитки, вырезать еще пять сантиметров от стены с левой стороны и сделать в стене канавку, куда войдет прилавок. На высоту, где будет верх мебели+ножка. Если возможно, также сверните букву L с правой стороны для простоты. Разбирать не стал, сказал, что это невозможно. Ничего, мы обрежем рабочий лист.

Затем воду, чтобы поместить выход воды полностью влево. Да, туда, где он был до переделки. Потом муж перевел электричество так, чтобы еще была розетка и шоколадка с правой стороны, а розетка посередине. Потом построили стены и поштукатурили.

Восьмой отстой

Когда стало действительно много места, мы снова попробовали мебель на самом новом месте. Все подошло, мы не продумали ни одной детали. Что водопроводная труба теперь тоже идет за холодильником, поэтому ее нельзя задвинуть так далеко, чтобы она не болталась из-под стандартной, шириной 63,5 см, столешницы. Дилемма: вытравливать воду в стену или вернуть столешницу и купить нестандартную по размеру? В итоге это стало первым решением, так как столешница нестандартного размера обошлась бы в ужасающую сумму.

Так мы назвали воду (еще одну, потому что есть предел тому, сколько горения может выдержать человек), и вырезали воду в стене. Муж заклеил его обратно и осмотрел.

Девятый отстой

Все перепробовали, все подходит, все открывается. Да ладно, ты действительно можешь начать собирать все вместе, навсегда. Когда мы дошли до того, чтобы начать выравнивать мебель, чтобы столешница была ровной, столкнулись с небольшой проблемой. Г-образное углубление на 4 см глубже, чем верхняя часть встроенного духового шкафа, если поставить на нее ногу.

Если мы установим на мебель 8-сантиметровые ножки, она уже не влезет. Однако с другой стороны на этой высоте есть паз для столешницы. Другими словами, по текущей ситуации шкаф справа ниже. И вы даже не можете вырезать из него Г-образную форму, так как нельзя вырезать верхнюю часть духовки.

Дилемма: отрезать 4 см от низа L с правой стороны (чтобы дно шкафа было выше) или отрезать 4 см от левого углубления, чтобы что лист может быть настолько ниже с левой стороны? Мы позвонили каменщику, который выздоравливал после операции, и он сказал, что, по его мнению, от буквы L можно отрезать 4 сантиметра.(Спешите, мы ведь не зря купили стамеску, даже в начале!) Муж запустил и отрезал 4 см. Под ним ничего не было, каменщик легко мог его снять.

Мы пошли в Икею и купили ножки.

Десятый отстой

Все шкафы (на ножках) на месте, столешница может прийти. Мы все очень тщательно измерили, убедившись, что нигде нет прямого угла, затем точно до миллиметра начертили на рабочей поверхности, и муж начал обрезать в размер. Вы проделали прекрасную работу. Когда он был готов, мы примерили его. Я имею в виду, мы бы попытались. Потому что нельзя было всунуть прямо, потому что там дверной косяк, который уже, не так ли? Он застревает в ряду плиток сверху. Он сделал это слишком точно. Муж отрезал полдюйма сбоку над дверью. Все равно не влезет. Еще полдюйма. Входит.

Большой воздух, ура. На тот момент нужно было вырезать только место для раковины и варочной панели, практически детская игра. Вот мы и подошли к тому моменту, когда вся мебель стоит на ножках, со столешницей сверху, раковиной и варочной панелью в столешнице. Розетки воды и электричества на своих местах, все влезает, ничего не торчит. Из крана течет вода (холодная и горячая, с правой стороны), плита и духовка работают, холодильник стоит под столешницей, не выпирает, тоже работает. Мы готовы.

Встроенный холодильник был бы лучше, если бы он был шириной 50 см. Очень извиняюсь за качество фото, снимал с мобилы, это я знал еще вечером, дверца капельного шкафа - вечный пропавший предмет в Икее, но с тех пор ее заменили
Встроенный холодильник был бы лучше, если бы он был шириной 50 см. Очень извиняюсь за качество фото, снимал с мобилы, это я знал еще вечером, дверца капельного шкафа - вечный пропавший предмет в Икее, но с тех пор ее заменили

Сколькими отсосами вы бы это сделали?

  • Тути 0
  • 1-3
  • 3-6
  • 7-10

Обучение?

Столькому нужно научиться, что обывателю очень трудно все обдумать, когда так мало места и все так хорошо продумано. Было бы детской забавой собрать такую же кухню на прямой стене, если бы не работа в дроп-ин. Однако сюрпризов было столько (дверная коробка, край раковины над стойкой, наклонные стены, отсутствие прямых углов, Г-образная выемка над стойкой и т. д.), что мы с ней изрядно натерпелись.. Может быть, было бы проще, если бы мы изначально нашли подрядчика, но все поняли бы это только через несколько месяцев.

Урок в том, что план архитектора был действительно плох, хотя и не из-за того, что сказал арендатор. Однако он не учел дверной косяк, то, что внутренний размер вставки не соответствует внешнему, а также то, что если верх стойки находится на высоте 875 см - там, где он планировал - то L форма должна быть снесена, на самом деле с Г-образной формой в первую очередь он не считал, он забыл ее нарисовать, и над ней проходит вентиляционная труба, поэтому ее нельзя полностью разобрать.

Самый большой урок заключается в том, что прежде чем сделать первый шаг, покажите свои планы как можно большему количеству профессионалов и непрофессионалов и обсудите с ними все детали.